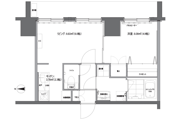
- 間取り
- 1LDK
- 専有面積
- 33.42㎡(バルコニー面積:6.20㎡)
- 賃貸料金
- 68,000円
- 管理費
- 7,000円
- 敷金/礼金
- 家賃の1ヶ月分/家賃のヶ月分
- 設備
- <共用>
オートロック、防犯カメラ、ロビー、フロント、屋内駐輪場、有料駐車場(24台)、カーシェアリングステーション(2台)、ロードヒーティング、エレベーター(2基)、宅配ボックス、BS・CSアンテナ
<専有>
電化キッチン(IH×2口)、洗面化粧台、温水洗浄便座、セパレート(バス・トイレ)、シューズボックス、クローゼット、バルコニー、センサー感知ライト、冷暖房ルームエアコン(寒冷地仕様)、インターネット(館内LAN)無料・メールアドレス取得可、フレッツ光個別契約可(有料)








